Three floors of possibility

More than square footage—this is a space designed to inspire.

This three-story landmark, built on a striking limestone foundation and spanning seven by six bays, offers a unique blend of character and modern capability. Each 7,000 sq. ft. floor is bright, open, and fully equipped with today’s essentials: high-speed connectivity, reliable climate control, enhanced security, and abundant natural light.

A place where teams can thrive and great ideas take shape.

All 3 floors have expansive 60 ft x 100 ft space offering 7,000 sq. ft. of flexible use, ideal for a wide range of commercial or mixed-use needs. With 35 dedicated parking spaces, it provides excellent accessibility for customers, clients, and staff.

The property features a long-term 250-year leasehold, ensuring stability and security for future development or investment.

  


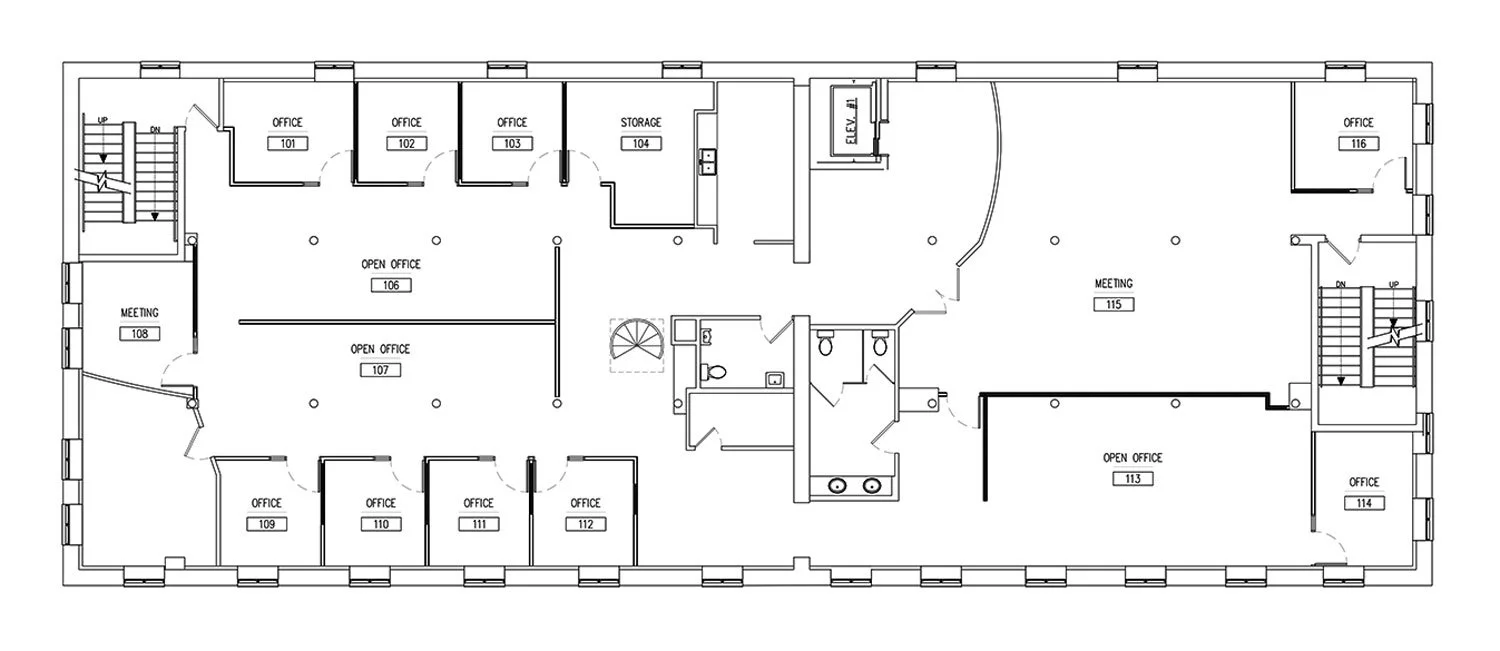
First Floor

Availability: Fall of 2026


Additional information regarding utilities and reservation fees is available upon request. Please contact us for details.


Second Floor

Under contract and unavailable.

Additional information regarding utilities and reservation fees is available upon request. Please contact us for details.

Third Floor

Under contract and unavailable.

Additional information regarding utilities and reservation fees is available upon request. Please contact us for details.



Enough space to imagine, innovate, and park.

At The Nissly Warehouse, your team benefits from 80 dedicated onsite parking spaces right outside the building. Skip the hassle of street parking and meters—arrive, park, and head straight in.

Contact us
Home